
中建财富国际中心信息 010-64431423
本项目位居北京城龙脉中轴线上上风上水文脉深厚。位于新崛起的奥南商务区,地处 北三环与北四环之间属亚奥商务板块,紧邻10号线安贞门地铁站,交通四通八达。 首都机场、金融街、中关村等区域半小时内地铁直达。
周边有北四环、北土城路、北三环、八达岭 高速、北“西路、中轴路、安立路、北苑路、 京承高速等多条主干道交通达性极高M道路 交通优势突出

总楼层:地上20层,地下5层 建筑面积:48767m²
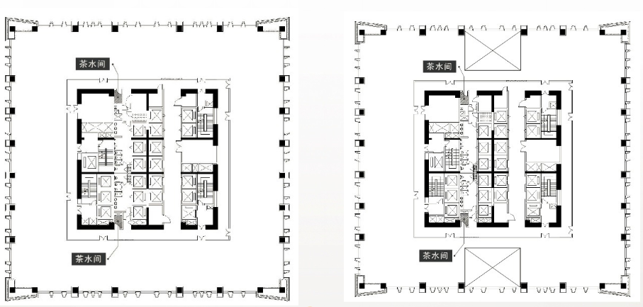
得房率:高达76% 标准层高:4.2米,净高2.8米
客梯数:每座6个(通力品牌) 车位配套: 525个 通信网络: 中国电信、中国联通、中国移动
空调配置:约克品牌空调, 外区:四管制风机盘管+新风,内区:V0V变风量系统。办公新风量40立方/h/p(功率>80W/平米),设PM2.5净化系统。提供24小时冷却水预留条件!

北京中海国际中心及环宇荟位于奥体南区4号地,为商业综合体项目,包括2座甲级写字楼和1座购物中心。北京中海国际中心办公楼全景采光设计,户型方正,进深7-12米,确保办公位布局。单层得房率约76% 每层设茶水间。
